慣性振動輸送機簡介
??GZS型慣性振動輸送機用于各種粒狀、中等塊度以正反非粘性物料(含水量小于5%)。適宜輸送高磨耗、高溫度(300℃以下)物料。如水泥熟料、烘干熱礦渣、砂等。慣性振動輸送機的特點
- 輸送量大、重量輕、電耗低。
 - 負載特性好。機槽振幅受電壓波動對輸送量的影響很??;起動快,在滿載情況下均能正常起動;停車快,停車時整機穩定。
 - 結構簡單,調試容易,磨損件少,維修量少。
 - 該振動輸送機安裝方便。不需專用地基和地腳螺栓,便于移動位置。
 - 隔震性能好。故適宜水泥熟料及礦渣庫頂輸送。
 

慣性振動輸送機技術參數
參數  | 輸送量(t/h)  | 額定振幅(mm)  | 電機功率(kw)  | 電機轉速(rpm)  | 設備重量(kg)  | 
型號  | |||||
GZS400-4.7  | ≤50  | 5  | 1.5  | 1410  | ~1400  | 
GZS400-5.7  | ≤50  | 5  | 1.5  | 1410  | ~1550  | 
GZS400-6.7  | ≤50  | 5  | 1.5  | 1410  | ~1950  | 
GZS400-7.7  | ≤50  | 5  | 1.5  | 1410  | ~2100  | 
GZS650-4.7  | ≤100  | 5  | 2.2  | 1430  | ~2650  | 
GZS650-5.7  | ≤100  | 5  | 2.2  | 1430  | ~2800  | 
GZS650-6.7  | ≤100  | 5  | 3.0  | 1430  | ~3200  | 
GZS650-7.7  | ≤100  | 5  | 3.0  | 1430  | ~3500  | 
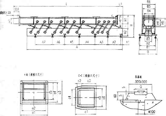
型 號  | H  | H1   | H2   | H3   | H4   | H5   | B  | B1   | B2   | B3   | B4   | B5   | B6   | 
GZS400-4.7-7.7  | ~1350  | 429  | 490  | 240  | 232  | 360  | 840  | 780  | 640  | 500  | 400  | 538  | 670  | 
GZS650-4.7-7.7  | ~1500  | 477  | 540  | 280  | 270  | 380  | 1140  | 1000  | 840  | 660  | 650  | 830  | 1010  | 
 型 號  | a1  | a2  | a3  | a4  | a5  | C1   | C3   | C3   | C4   | C5   | C6   | C7   | 
GZS400-4.7-7.7  | 538  | 448  | 469  | 380  | 320  | 342  | 98  | 200  | 398  | 448  | 530  | 200  | 
GZS650-4.7-7.7  | 830  | 718  | 527  | 422  | 362  | 347  | 98  | 200  | 648  | 718  | 830  | 250  | 
型 號  | L  | L1   | I  | A  | A1   | A2   | A3   | A4   | A5   | A6   | A7   | 
GZS400-4.7  | 4700  | 401  | 310  | 4000  | 180  | 930  | 1300  | 660  | 660  | -  | -  | 
GZS400-5.7  | 5700  | 370  | 310  | 5000  | 400  | 570  | 570  | 1830  | 725  | 725  | -  | 
GZS400-6.7  | 6700  | 340  | 310  | 6000  | 200  | 645  | 645  | 1385  | 820  | 820  | 820  | 
GZS400-7.7  | 7700  | 370  | 310  | 7000  | 180  | 965  | 965  | 1180  | 1045  | 1045  | 1045  | 
GZS650-4.7  | 4700  | 337  | 312  | 4000  | 180  | 410  | 410  | 1264  | 635  | 635  | -  | 
GZS650-5.7  | 5700  | 390  | 312  | 5000  | 180  | 570  | 570  | 1730  | 780  | 780  | -  | 
GZS650-6.7  | 6700  | 348  | 312  | 6000  | 180  | 625  | 625  | 1410  | 1040  | 880  | 880  | 
GZS650-7.7  | 7700  | 365  | 312  | 7000  | 180  | 830  | 830  | 1490  | 1120  | 1120  | 1120  | 
蘇公網安備 32062102000184號