
一、簡介
         ZG電磁振動給煤機用來將煤炭或其它散狀物料從料倉或漏斗中均勻連續或定量地給到受料設備中去,如帶式輸送機斗,斗式機提升機,篩分設備,破碎機等。
         ZG電磁振動給煤機配備電源控制箱,可以五級調節給料量,配量自動穩幅控制箱,可不受電源電壓的波動而使機器振幅穩定,且噪音降低,壽命延長,可靠性提高,同時還可以與計算機實現聯機,實現自動化智能給料。
二、重要技術參數
規格型號  |             生產率 t/h  |             zui大給料粒度 mm  |             振動次數 次/分  |             整體重量  |             雙振幅 mm  |             配用電磁振動器  |             整機重量 kg  |         ||
規格  |             有功功率kW  |             額定電流A  |         |||||||
ZG-20  |             20  |             75  |             3000  |             AC220  |             1.75  |             DZ3  |             0.2  |             3.8  |             266  |         
ZG-50  |             50  |             100  |             DZ4  |             0.45  |             7  |             497  |         |||
ZG-100  |             100  |             150  |             DZ5  |             0.65  |             10.6  |             898  |         |||
ZG-200  |             200  |             200  |             AC380  |             1.5  |             DZ6  |             1.5  |             13.3  |             1750  |         |
ZG-300  |             300  |             300  |             DZ7  |             2.5  |             20  |             2300  |         |||
三、結構與外形尺寸
(一)結構
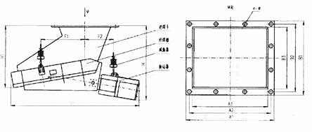
        ZG電磁振動給煤機主要由電磁振動器,進煤斗、給料槽、落煤管、減振器等組成。
(二)ZG-20、ZG-50、ZG-100型結構尺寸圖及參數

代號  |             A×A  |             B×B  |             C×C  |             D1  |             D2  |             D3  |             G  |             L  |             H  |             n1-Φ1  |             n2-Φ2  |             F1  |             F2  |             減振器開檔  |         |
前  |             后  |         ||||||||||||||
ZD-20  |             480  |             435  |             380  |             Φ325  |             Φ385  |             Φ425  |             800  |             1470  |             900  |             12-14  |             12-14  |             535  |             310  |             518  |             518  |         
ZD-50  |             595  |             540  |             480  |             Φ426  |             Φ490  |             Φ528  |             1100  |             2000  |             1100  |             12-18  |             12-18  |             560  |             538  |             640  |             620  |         
ZD-100  |             845  |             800  |             720  |             Φ630  |             Φ700  |             Φ745  |             1250  |             2400  |             1415  |             16-18  |             16-18  |             470  |             580  |             930  |             750  |         
(三)ZG200、ZG300型結構尺寸圖及參數
 
代號  |             A×A  |             B×B  |             C×C  |             D1  |             D2  |             D3  |             G  |             L  |             H  |             n1-Φ1  |             n2-Φ2  |             F1  |             F2  |             減振器開檔  |         |
前  |             后  |         ||||||||||||||
ZD-20  |             480  |             435  |             380  |             Φ325  |             Φ385  |             Φ425  |             800  |             1470  |             900  |             12-14  |             12-14  |             535  |             310  |             518  |             518  |         
ZD-50  |             595  |             540  |             480  |             Φ426  |             Φ490  |             Φ528  |             1100  |             2000  |             1100  |             12-18  |             12-18  |             560  |             538  |             640  |             620  |         
ZD-100  |             845  |             800  |             720  |             Φ630  |             Φ700  |             Φ745  |             1250  |             2400  |             1415  |             16-18  |             16-18  |             470  |             580  |             930  |             750  |         
四、安裝及調試
安裝步驟
        1、進煤斗上口法蘭與原煤斗的出口法蘭用螺栓連接,可在兩法蘭中間加裝膠皮墊;
        2、安裝減振器及給煤機主機;
        3、落煤管上法蘭與進煤斗的下法蘭用螺栓連接,可在兩法蘭中間加裝膠皮墊;
        4、煤管的下法蘭與磨煤機的進口法蘭用螺栓連接,如有高度差,或口徑不一致,可加裝溜管過渡;
        5、調節前后減振器使給煤槽與進煤斗和落煤管成均勻間隙,間隙大小一般為20-30mm,不允許與其它部件相碰。并保證給煤槽呈水平狀態,如需要增大煤量,可使給料槽向下傾斜0-10度。



蘇公網安備 32062102000184號